Úvodní strana - Tomkova ulice - Plánky objektu - Ceník nájmů - Fotogalerie - Hradec Králové

Pronájem prodejen, kanceláří a luxusních bytů na starém městě v Hradci Králové

Nájemní dům č.p. 1230 a 911 v Tomkově ulici v Hradci Králové

Charakteristika a umístění domu:
Dům je postaven v uličce přímo navazující na jedinou pěší přístupovou cestu do starého města.
V Tomkově ulici se nachází knihovna, několik obchodů, čtyři malebné restaurace, dvě kavárny a mnoho kanceláří, úřadů a sídel firem. Je zde také několik desítek pronajatých bytů.

Dům byl dostavěn na přelomu 18. a 19. století na kamenných základech domu ze 14. století. Objekt nyní prochází úplnou rekonstrukcí s cílem zachovat původní charakter a ducha starobylé stavby. Jedná se o luxusní bytový dům se dvěma provozovnami a se čtyřmi byty. K dispozici jen pro nájemníky domu bude stylový vinný sklípek určený na soukromé i firemní oslavy.
V podzemních prostorách bude nájemníkům k dispozici společná prádelna vybavená pračkou a sušičkou. Každý prostor bude vybaven centrálním vysáváním, on-line připojením na internet, společnou televizní i satelitní anténou a samozřejmě telefonní přípojkou. Bude zajištěn i pravidelný úklid společných i pronajatých prostor v domě.

Provozovny:
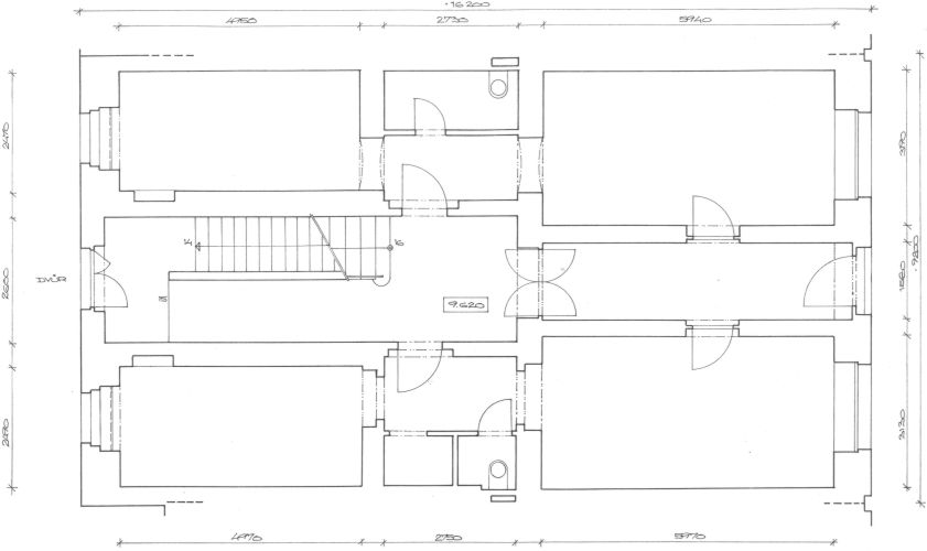
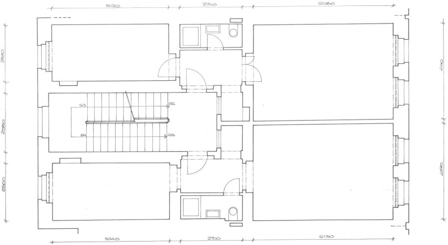
V přízemí jsou tady dva obchůdky s výlohou do Tomkovy ulice
v Hradci Králové. Celková plocha každé provozovny je přibližně 45 m2 a jedná se o dvě místnosti propojené chodbou a soc. zařízení, viz. plánek.
Byty:
Čtyři byty jsou k dispozici v prvním a ve druhém podlaží objektu. Plocha každého z nich je 50 m2. Byty jsou koncipovány jako luxusní ubytování pro 1 - 2 osoby. V hlavním pokoji je vestavěna malá kuchyň s barovým pultem, který opticky odděluje jídelní část pokoje od obývací části. Ze vstupní chodby je dále přístup do vestavěné šatny, koupelny (WC, umyvadlo a sprchový kout) a úzké ložnice (pracovny). Okna jsou z ložnice orientována do dvorku na jih a pokoje do ulice na sever, viz. plánek.
Termíny dokončení:
Dům je po kompletní rekonstrukci a provozovny i byty jsou v této chvíli obsazeny. Na aktuální stav je možné se dotázat telefonicky nebo e-mailem.
Kontakt:
Karel Pohner
Tomkova 911/6
500 03 Hradec Králové 1
tel.: 49 5512322
fax: 495510881
mobil: 608 76463

www: http://rent.pohner.cz
email: karel@pohner.cz